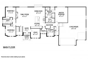
Kingston main floor plan